


Raktárak Next Step Kożuchów
ul. Inwestycyjna, 67-120 Kożuchów, Polska Zachodnia
Nincs értékelés
Tárgyalható
Kiadó terület:
Ajánlat frissítés: 25.02.2026
További értékes bérleti információk
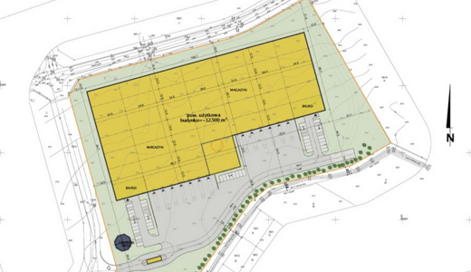
Raktár bemutatása Next Step Kożuchów
| A park teljes területe | 12 500m2 |
| Meglévő terület | 12 500m2 |
| Építés alatt álló terület | - |
| Tervezett terület | - |
| Bővíthető | Nem |
| Teljes rendelkezésre álló terület | 0m2 |
| Minimális egység | 0m2 |
| Elérhető a | - |
| Minimális bérleti időszak | 5 |
Raktár bérleti feltételek Next Step Kożuchów
| Raktárbérlet | Tárgyalni kell |
| Raktári szolgáltatási díj | Tárgyalni kell |
| Irodabérlet | Tárgyalni kell |
| Irodai szolgáltatási díj | Tárgyalni kell |
Felszereltség
Légkondicionálás
Sprinklerek
Füstölőszárny
Gantry
Cooler
LED
Az épület részletei

Áttekintés a rendelkezésre álló területekről
A Next Step Kożuchów raktárak elhelyezkedése
ul. Inwestycyjna, 67-120 Kożuchów, Polska Zachodnia










